CAD drawings details of sanitary blocks autocad software file
Description
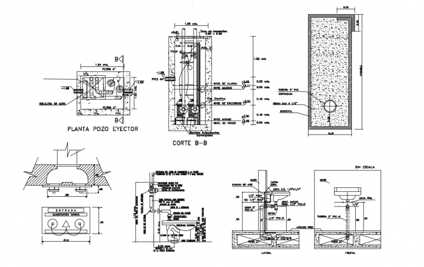
CAD drawings details of sanitary blocks autocad software file that shows drain pipe details along with watercloset details and washbasin details with different sides of elevation with sewer pipe details also included in drawings.
File Type:
DWG
File Size:
—
Category::
Dwg Cad Blocks
Sub Category::
Sanitary CAD Blocks And Model
type:
Gold
Uploaded by:
Eiz
Luna

